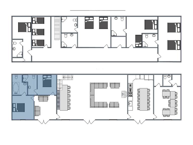
Chambre Verte (étage)
Un grand ensemble composé de deux parties :
- une chambre avec un lit double et un lit simple et sa salle de bain privative,
- une seconde chambre avec deux lits doubles et sa propre salle d'eau.
Une formule pratique et confortable pour les familles élargies ou les séjours entre amis.




